- Carolyn Watson, REALTOR ®
- Tropic Shores Realty
- Mobile: 941.815.8430
- carolyntuckerwatson@gmail.com
Share this property:
Contact Carolyn Watson
Schedule A Showing
Request more information
- Home
- Property Search
- Search results
- 14 Cedar Tree Terrace, OCALA, FL 34472
- MLS#: TB8454155 ( Residential Lease )
- Street Address: 14 Cedar Tree Terrace
- Viewed: 5
- Price: $1,495
- Price sqft: $1
- Waterfront: No
- Year Built: 2006
- Bldg sqft: 1346
- Bedrooms: 3
- Total Baths: 2
- Full Baths: 2
- Days On Market: 13
- Additional Information
- Geolocation: 29.1171 / -82.0362
- County: MARION
- City: OCALA
- Zipcode: 34472
- Subdivision: Silver Spgs Shores Un 09
- Elementary School: Legacy Elementary School
- Middle School: Lake Weir Middle School
- High School: Lake Weir High School

- DMCA Notice
-
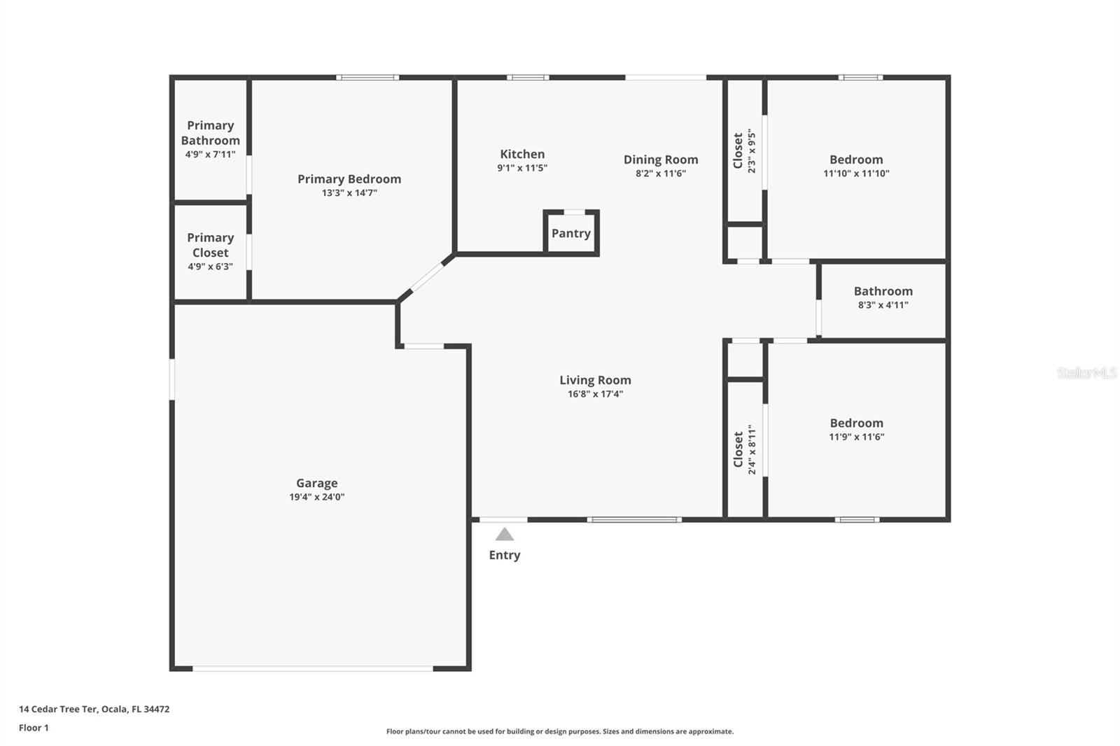
DescriptionWelcome to this inviting and well maintained 3 bedroom, 2 bath single family home located on a quiet street and offering a comfortable, move in ready layout. The split bedroom floor plan provides excellent privacy, with the primary suite featuring a walk in closet and the additional bedrooms positioned on the opposite side of the home with an adjoining secondary bathroom. The living room/dining room combination creates an open, versatile space ideal for both everyday living and entertaining. The kitchen includes plenty of cabinetry, a pantry for added storage, updated stainless steel appliances, a kitchen faucet water filter and convenient access to the main living areas. A 2 car garage offers additional storage and parking. This home features no carpet throughout, making it easy to maintain and ideal for pets! Outside, the private chain link fenced backyard is perfect for pets, play, gardening, or outdoor relaxation. Located just minutes from shopping, dining, and everyday essentials, this move in ready home offers comfort, convenience, and value. Call to schedule a showing ASAP!
All
Similar
Property Features
Appliances
- Dishwasher
- Range
- Refrigerator
Home Owners Association Fee
- 0.00
Association Name
- to be provided
Carport Spaces
- 0.00
Close Date
- 0000-00-00
Cooling
- Central Air
Country
- US
Covered Spaces
- 0.00
Flooring
- Tile
Furnished
- Unfurnished
Garage Spaces
- 2.00
Heating
- Central
High School
- Lake Weir High School
Insurance Expense
- 0.00
Interior Features
- Ceiling Fans(s)
Levels
- One
Living Area
- 1346.00
Middle School
- Lake Weir Middle School
Area Major
- 34472 - Ocala
Net Operating Income
- 0.00
Occupant Type
- Vacant
Open Parking Spaces
- 0.00
Other Expense
- 0.00
Owner Pays
- Water
Parcel Number
- 9009-0070-27
Pets Allowed
- Cats OK
- Dogs OK
Property Type
- Residential Lease
School Elementary
- Legacy Elementary School
Tenant Pays
- Cleaning Fee
- Re-Key Fee
Utilities
- Cable Available
- Electricity Available
- Water Connected
Water Source
- Public
Year Built
- 2006
Listings provided courtesy of The Hernando County Association of Realtors MLS.
Listing Data ©2025 REALTOR® Association of Citrus County
The information provided by this website is for the personal, non-commercial use of consumers and may not be used for any purpose other than to identify prospective properties consumers may be interested in purchasing.Display of MLS data is usually deemed reliable but is NOT guaranteed accurate.
Datafeed Last updated on December 19, 2025 @ 12:00 am
©2006-2025 brokerIDXsites.com - https://brokerIDXsites.com
Sign Up Now for Free!X
Call Direct: Brokerage Office: Mobile: 941.815.8430
Registration Benefits:
- New Listings & Price Reduction Updates sent directly to your email
- Create Your Own Property Search saved for your return visit.
- "Like" Listings and Create a Favorites List
* NOTICE: By creating your free profile, you authorize us to send you periodic emails about new listings that match your saved searches and related real estate information.If you provide your telephone number, you are giving us permission to call you in response to this request, even if this phone number is in the State and/or National Do Not Call Registry.
Already have an account? Login to your account.































